
Jovita Floor Plan & Layout
Gamuda Gardens Jovita layout plan is available in 3 different types to suit different family needs and requirements. Designed as a home for multi-generation living, Jovita’s layout is expansive and generous with a lot of natural lighting throughout the living areas and rooms.
Jovita Floor Plan

Jovita Type A1
- 2 Storey LInked Semi-D
- Land Size : 35″ x 70″
- Build Up : 2,627 sq ft
- 4 Bedrooms Ensuite Bathroom
- Side Garden & Patio
- Courtyard
- Utility Room

Jovita Type B1
- 2 Storey LInked Semi-D
- Land Size : 35″ x 70″
- Build Up : 2,570 sq ft
- 4 Bedrooms Ensuite Bathroom
- Side Garden & Patio
- Courtyard
- Utility Room

Jovita Type C1
- 3 Storey LInked Semi-D
- Land Size : 35″ x 70″
- Build Up : 3,164 sq ft
- 5 Bedrooms
- 6 Bathrooms
- Double Volume Ceiling
- Side Garden & Patio
- Courtyard
- Utility Room

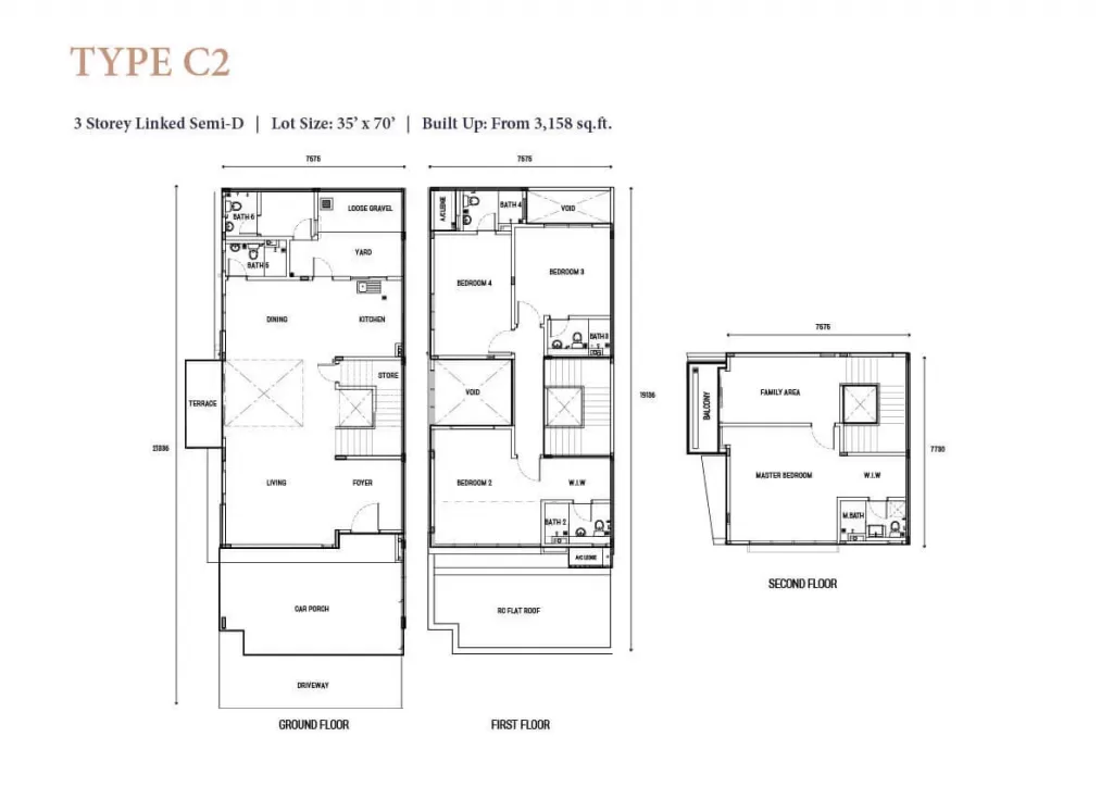
Jovita Type C2
- 3 Storey LInked Semi-D
- Land Size : 35″ x 70″
- Build Up : 3,158 sq ft
- 5 Bedrooms
- 6 Bathrooms
- Double Volume Ceiling
- Side Garden & Patio
- Courtyard
- Utility Room
Jovita layout is generous compared to the first phase of Gamuda Gardens, the Village Homes. That would also mean that these semi-detached linked units come with higher price points. The large living and dining areas are great for family gatherings and events while the garden is perfect for those with green fingers or simply as a nicely landscaped garden.
Get more info on latest property launches in Gamuda Gardens
Check out the latest properties in Gamuda Gardens and the indicative property prices.
